謝竺君:桃園湖居——為業主打造溫馨舒適的居住空間
瀏覽量:265
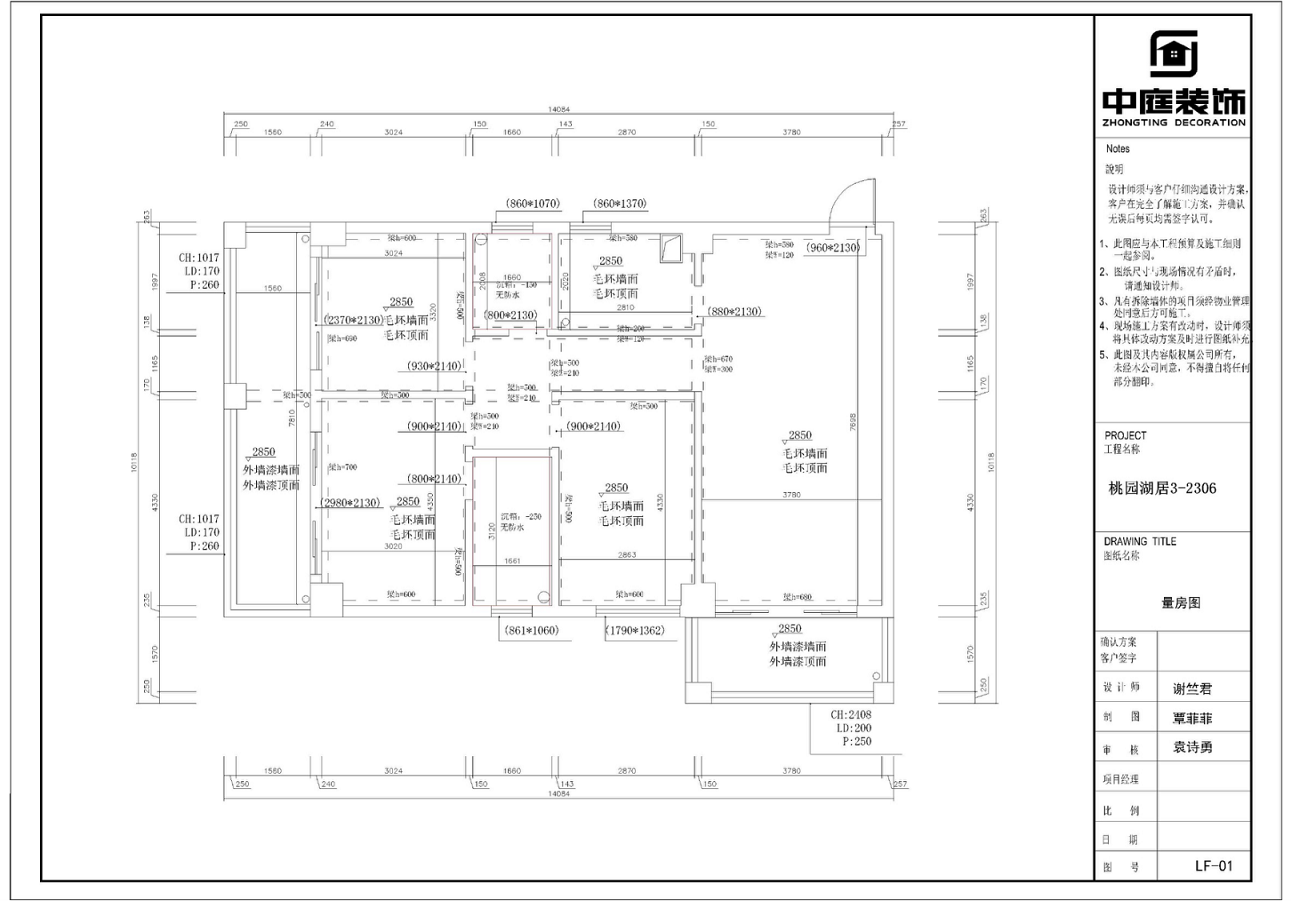
原始戶型圖

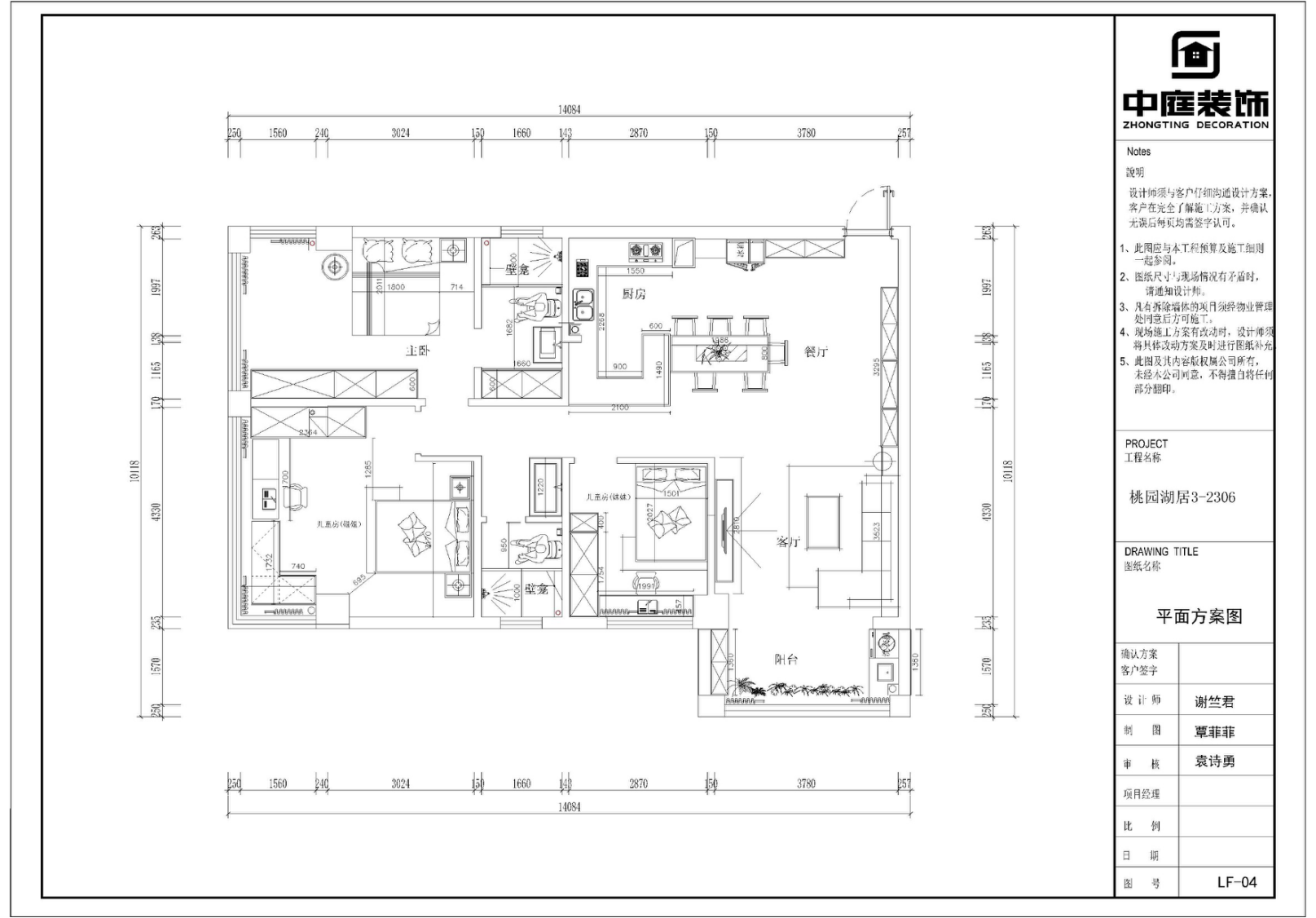
平面布置圖
1.主臥:寬敞舒適的臥室;到頂的儲物柜,滿足收納需求,獨立的衛浴空間,更是優質生活的體現
2.兒童房:房間外擴出去,增加了空間面積,使兒童活動空間更大,靠窗的書桌,采光更好,更有利于學習
3.廚房:開放式廚房與客廳互為連通又相對獨立,中西廚合并與島臺的設計滿足烹飪需求。
4.客廳:將景觀陽臺納入客廳空間,視線開闊,到頂的儲物柜滿足收納需求且有足夠的展示空間。
客廳效果圖VS客廳實景圖





整個空間基于原宿風格上做搭配,客餐廳地面采用兩種材質,充分把功能性能提高;
陽臺打通,解決不互通的采光問題,天氣陰晴,都可以為空間做天然點綴;
開放式廚房和餐廳可以共享操作,互不干擾,又可以加強家人之間的互動性提高家庭的幸福感。
餐廚效果圖VS餐廚實景圖





臥室效果圖VS臥室實景圖



整個空間主要在軟裝搭配上做文章,運用比較童趣的掛畫,掛件等裝飾,讓空間生動活潑起來。
相關案例推薦RELATED TO THE CASE
查看更多案例-
現代風格丨 四居室以上 丨120-150㎡
-
現代風格丨 三居室 丨80-120㎡
-
極簡風格丨 三居室 丨80-120㎡
-
其它風格丨 三居室 丨80-120㎡
預約整裝設計方案服務
*已有【1000+】人成功預約
設計資訊DESIGN INFORMATION
查看更多資訊-
-
15
2022-05
南寧自有工人的裝修公司
南寧自有工人的裝修公司,說到裝修,自... 查看詳情>> -
15
2022-05
如何選南寧裝修公司省錢又省心?
在南寧新房裝修如何選擇裝修公司省錢又... 查看詳情>> -
15
2022-05
南寧新房選裝修公司一定要看這8大保障!
南寧新房裝修怎么選裝修公司,這8大保... 查看詳情>> -
15
2022-05
南寧新房裝修怎么選裝修公司?
不操心的裝修,往往是大部分人對房子裝... 查看詳情>> -
15
2022-05
南寧裝修公司怎么選?
說到裝修,大部分業主最先聯想到的就是... 查看詳情>>



