美女胸18大禁止在线网站免费_亚洲成a人片77777在线播放_91久久99热青草国产_日本三级香港三级乳网站

咨詢熱線:

400-968-0771

林鍵:冠江墅——展現空間的藝術美學

瀏覽量:190
施工面積:120-150㎡| 設計風格:現代風格
案例詳情:

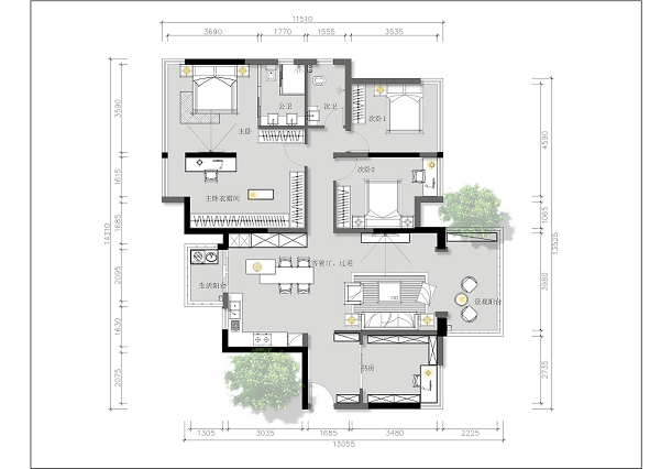
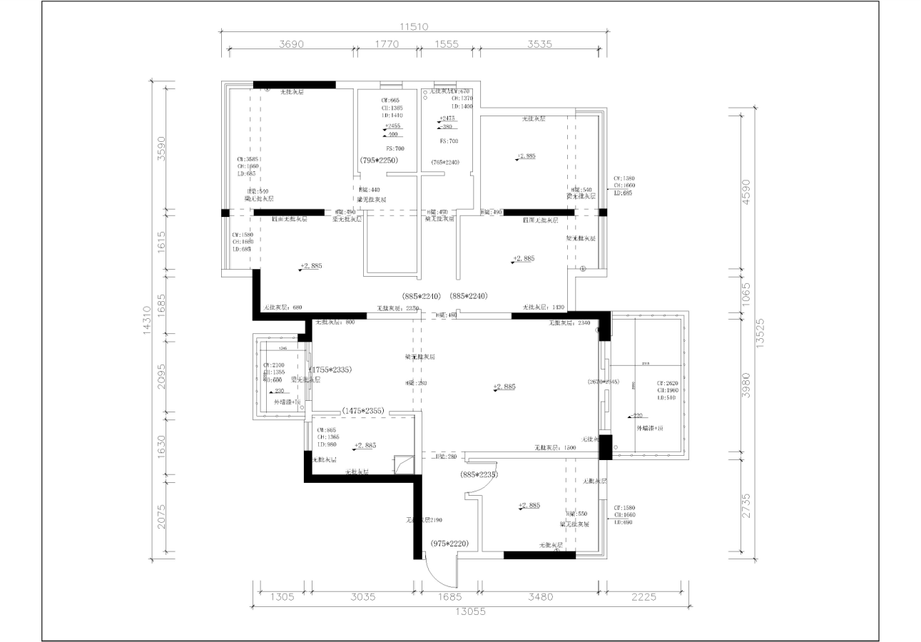
原始戶型圖

本次的業主是一對小輕這個房子是作為婚房使用有打算要寶寶又做飯的需求。希望有一間小書房希望能有物品的收納空間父母偶爾會來小住。喜歡有線條感的設計,希望陽光灑下的感覺。


平面布置方案

在做規劃的時候我們要了解客戶的家庭成員構成和他們的需求和喜好根據他們的想法來設計除了空間設計合理還要考慮實際生活中關注的問題例如材質的選用收納的空間多維度的思考才能為客戶設計一個滿意的家。


客廳效果圖VS客廳實景圖

20220519/75c46a4f0e56e958a0bf85417606849b.png

20220519/b1b73a36317be0e44bf3d8c598efb62d.png

整個空間變得更加寬闊通透,視野也有一定的拓展,藍色系的空間在整個空間當中變得更加大氣,再加上灰綠色的布藝沙發,灰色的茶幾在色調上有的用的沖擊性豐富了整個空間當中的層次。


餐廳效果圖VS餐廳實景圖

20220519/8b59a2b414211fffb07b08859d798e5b.png

20220519/e08ee1429ec311a9f711d67d62f50662.png

相比較于公共空間淺的色調,灰色系的設計更顯典雅奢華。設計師運用簡單的設計線條勾勒簡約的現代美



設計師/DESIGNER

林鍵

林鍵

職位:
設計導師

TALK|預約設計 更多作品

相關案例推薦RELATED TO THE CASE

查看更多案例

預約整裝設計方案服務

*已有【1000+】人成功預約

設計資訊DESIGN INFORMATION

查看更多資訊

住好一點·選中庭

專注廣西高品質家裝13年,想客戶之所想,以嚴苛的施工標準,精工筑建您心中的完美家園

裝修流程

只需4步,0元獲取裝修方案

在線預約

0元設計

電話安排

設計師溝通

獲取名額

對接量房

專業設計師

0元設計

0元獲取裝修方案

  • *您的稱呼
  • *樓盤名稱
  • *手機號碼

*為了您的利益及我們的口碑,您的信息將被嚴格保護。

裝修計算器今天已有 1388 位業主獲取了裝修預算

m2

超精準計算,一步解決預算難題

您家的裝修預算93930
  • 材料費:72217
  • 人工費:14505
  • 設計費:6471
  • 質檢費:737

回到頂部