美女胸18大禁止在线网站免费_亚洲成a人片77777在线播放_91久久99热青草国产_日本三级香港三级乳网站

咨詢熱線:

400-968-0771

黃有斌:翡翠時光——精工、材質打造現代新輕奢生活

瀏覽量:265
施工面積:80-120㎡| 設計風格:輕奢風格
案例詳情:

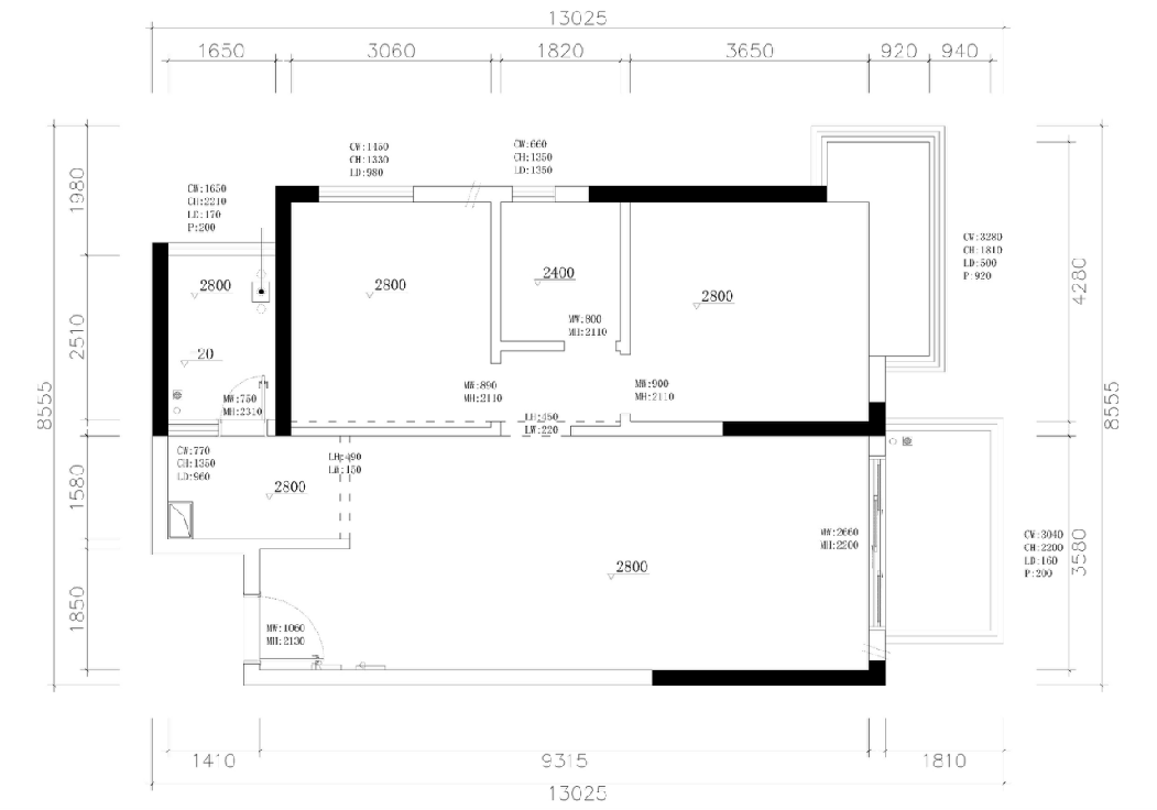
20220515/2e9127ae4c14ba5eb8c0bb9b7c3b6751.png

原始戶型圖

對于年輕的業主來說,豪奢不是最重要的,溫暖、輕松、愉悅、充滿生活氣息的品質生活才是她真正的需求所在。

比起在視覺層面的迎合,適宜的大小、滿足日常居住的功能性、舒適的空間氛圍更能打動她。

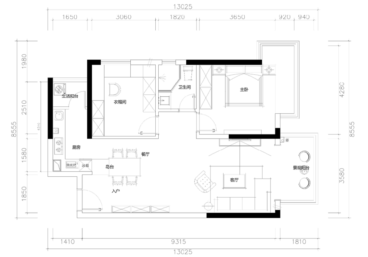
20220515/1fae5f52b7a31c412710376e8f77ea82.png

平面布置圖

1、業主是個年輕時尚的單身女生,對房子的要求就是在視覺層面的迎合,適宜的大小、滿足日常居住的功能性、舒適的空間氛圍溫馨。

2、動線上簡潔明了,無空間上的浪費,每個區域的空間利用都能和業主的需求一致。

3、該戶型的痛點就是由于陽臺外拓做了封窗處理,晾曬問題以及入門處空間狹小,餐桌和鞋柜距離就近。

4、針對兩處問題利用廚房的小陽臺放置洗衣機及烘干機。鞋柜與酒柜結合,鞋柜采用平板柜門過度到酒柜采用的是暗藏燈帶玻璃柜門,修飾掉鞋柜正對著餐桌的不適感。

20220515/b54971393d1aca9af278eff2dd74e98a.png


客廳效果圖VS客廳實景圖

20220515/fcc2f2fdbe0d6610440a7a051d1487e9.png

20220515/316dc96bcebe1201a5e8e486c95f010e.jpg20220515/948e09b9ef4860054f9c14e396132d9d.jpg

輕奢風格的空間以金屬、皮革的中性色調為主,用色彩的純度傳遞細膩的質感。

造型簡潔,線條流暢的家具組合搭配,營造出穩定、協調、溫馨的空間感受,滿足現代年輕家庭的輕奢需求。


餐廳效果圖VS餐廳實景圖

20220519/2de0a9a72c8cc0d4f8d1e162f26269a3.jpg

開放式餐廳將巖板臺面化為餐桌,制造出空間的體塊感,明晰空間功能屬性,而造型獨特的藝術品落于其上,在強烈風格的碰撞下,空間彌漫著一種當代生活與藝術美學生長在一起的日常感。用陳設軟裝來分隔空間的功能屬性,讓生活擁有更多可能。


臥室效果圖VS臥室實景圖

無論是石英石也好、瓷磚也好,還沒有哪種材料,既能達到大理石的美貌,又能實現堅固耐用的功能,直到巖板的出現,交織出大氣而端雅的秩序美與層次感,為空間的內在精神找到恰到好處的外在表現形式,在創新中演繹生活的格調。



設計師/DESIGNER

黃有斌

黃有斌

職位:
主任設計師

TALK|預約設計 更多作品

相關案例推薦RELATED TO THE CASE

查看更多案例

預約整裝設計方案服務

*已有【1000+】人成功預約

設計資訊DESIGN INFORMATION

查看更多資訊

住好一點·選中庭

專注廣西高品質家裝13年,想客戶之所想,以嚴苛的施工標準,精工筑建您心中的完美家園

裝修流程

只需4步,0元獲取裝修方案

在線預約

0元設計

電話安排

設計師溝通

獲取名額

對接量房

專業設計師

0元設計

0元獲取裝修方案

  • *您的稱呼
  • *樓盤名稱
  • *手機號碼

*為了您的利益及我們的口碑,您的信息將被嚴格保護。

裝修計算器今天已有 1388 位業主獲取了裝修預算

m2

超精準計算,一步解決預算難題

您家的裝修預算93930
  • 材料費:72217
  • 人工費:14505
  • 設計費:6471
  • 質檢費:737

回到頂部